Oxygen heater codes come on after engine idles for a while and engine starts running rough and missing

Tiny
TECHMECH57
  • MEMBER
  • 2008 DODGE TRUCK
  • 85,000 MILES
Dealer replaced all 4 of the O2 sensors but problem continues. After engine is warmed up if you let it idle for a while one by one the O2 sensor heaters start acting up. The codes that keep coming back are P0032, P0038. P0052, and P0058. Once you start driving they will come out of it. With a scanner on it I let it idle and one by one the % of heater function would drop to 0. Thanks, Dennis
Saturday, October 1st, 2011 AT 9:47 PM

3 Replies

Tiny
JACOBANDNICKOLAS
  • MECHANIC
  • 110,194 POSTS
This is complicated, so please read it slowly.

When running, the sensors should be between 10.4 and 15.75 volts. You are showing that the voltage is too high. This, the power is shutting down to them from the PCM. There are a few possible causes. The heater control circuit or ground circuit is open, the circuit is shorted to voltage, or the PCM is bad.

When the DTC is on, shut the engine and allow it to cool off. Allow the sensors to cool to around 70 degrees F. NOTE: The ambient temp will play tricks on your readings, so it needs to be around 70 degrees.

Measure resistance between the O2 heater element and the O2 heater element terminal and the ground terminal at the component. The resistance should be between 2.0 and 30.0 ohms.
If it doesn't checks out and the resistance is not within the limits, the sensor is bad. (See picture attached) If it isn't bad, continue.

Next, you will need a test light and a live scanner. Disconnect the O2 sensor. Start the engine with the scanner attached and actuate the O2 sensor. The light should turn on.

If it does turn on, shut the engine and measure resistance between the #1 harness connector and ground. If resistance is below 5 ohms, the sensor is bad. If it isn't continue.

It the light doesn't turn on, you have an open circuit between the O2 connector and the PCM

Now, there could be an issue with the circuit shorted to voltage. What I need you to check is this. Turn the engine off and the key to the off position. Is there voltage to the O2 plug? If there is, something is feeding power all the time. Thus, that plus the power from the PCM is causing the high circuit reading and then shutting them down.

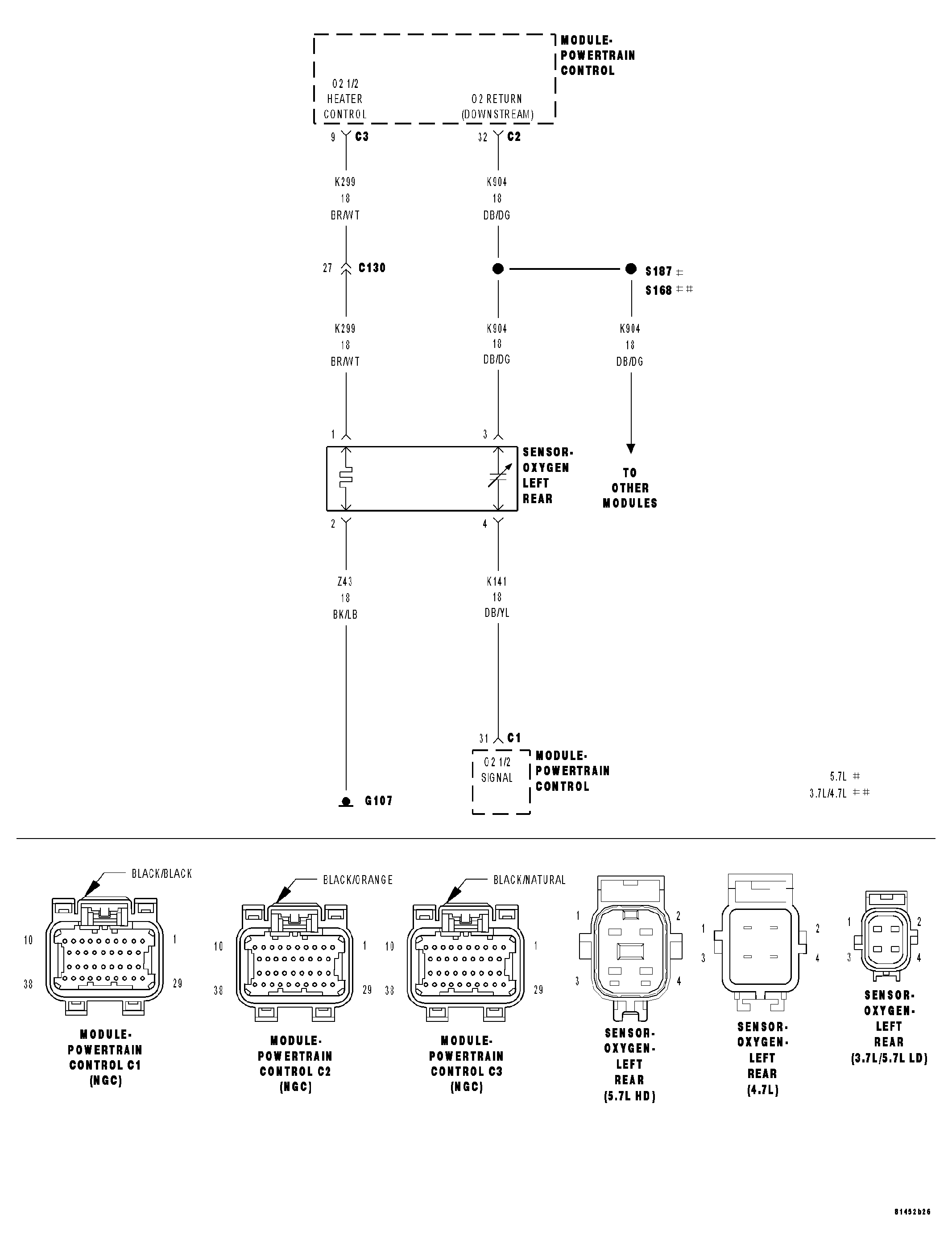
I have attached a wiring schematic of the O2 system for your review. I hope this helps. Sorry this was so long, but it takes time to explaine. Let me know if you have other questions.
Was this
answer
helpful?
Yes
No
Saturday, October 1st, 2011 AT 10:48 PM
Tiny
TECHMECH57
  • MEMBER
  • 22 POSTS
Thanks for the info. You would think the O2 sensors would be good since the dealer ship just replaced all four. You would think that since it does this only after you let it idle for awhile it wouldnt be a wiring problem. Have they had a PCM problem that would cause this. Wouldnt you have this problem at other times if it was a wiring problem. Thanks again, Dennis
Was this
answer
helpful?
Yes
No
Sunday, October 2nd, 2011 AT 7:41 PM
Tiny
JACOBANDNICKOLAS
  • MECHANIC
  • 110,194 POSTS
Dennis:

It could be the PCM. Actually, it seems that way, but I have to be sure before I point a finger at an expensive part. Everything you said makes 100% sence.
Was this
answer
helpful?
Yes
No
Sunday, October 2nd, 2011 AT 8:20 PM

Please login or register to post a reply.