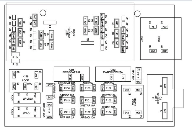
Thursday, February 3rd, 2011 AT 4:42 PM
A few days ago the heat was working fine, but now the heat is cold I made sure the air condition was not on and everything is fine, I think I have a fuse out where is the panel and how do I test them?











