Engine tapping noise

Tiny
STI402
  • MEMBER
  • 2004 INFINITI G35
  • 72,000 MILES
I bought a 2004 infiniti g35x and 500 miles before the oil change is due I always get a tapping noise, why, I'm thinking the owners before me use synthetic oil (idk I just throwing stuff out there) can u help please, also right low beam keeps going on and off.

I make sure I follow my mileage and do the oil change every 3000 miles but 500 miles prior to the oil change I always get a tapping noise in the engine and once I add oil the noise stops. Since its getting cold I feel like the performance dropped any ideas on how to winterize it. My right low beam headlight will work not work and just comes on on its own whenever it feels like.

thank you guys for helping
Denis
Tuesday, November 22nd, 2011 AT 1:20 AM

3 Replies

Tiny
DRCRANKNWRENCH
  • MECHANIC
  • 3,380 POSTS
The tapping nosie sounds like it could be a crushed lifter. Lifters are hydraulic and require oil to get to top end so they can pump up and push valves open. If it is not that, as I don't know which engine you have, the top end can make noise just from the level being low enough that it starves for oil and the cam and tappets get dry and make noise. If you hear this noise and have experienced a loss of power, the cam may be damaged. See how quickly the oil gets low and if you are having to add oil when the oil no longer shows up on the dip stick and requires a quart or more to show on stick or reach level, it may have had a level so low that it damaged the cam or tappets.
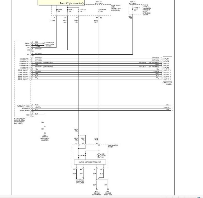
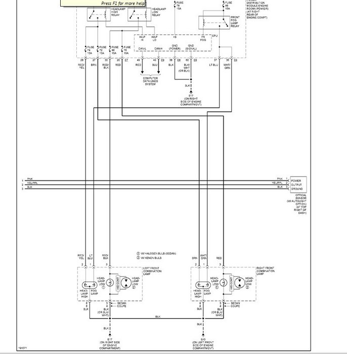
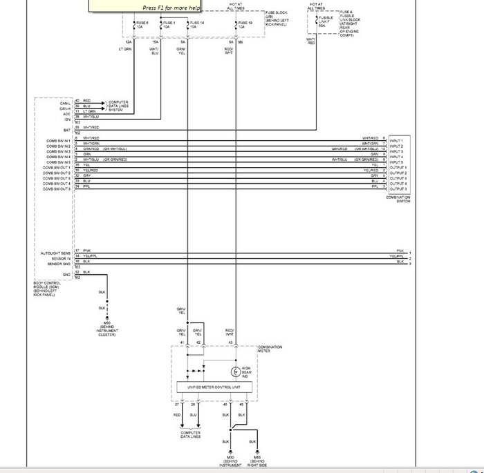
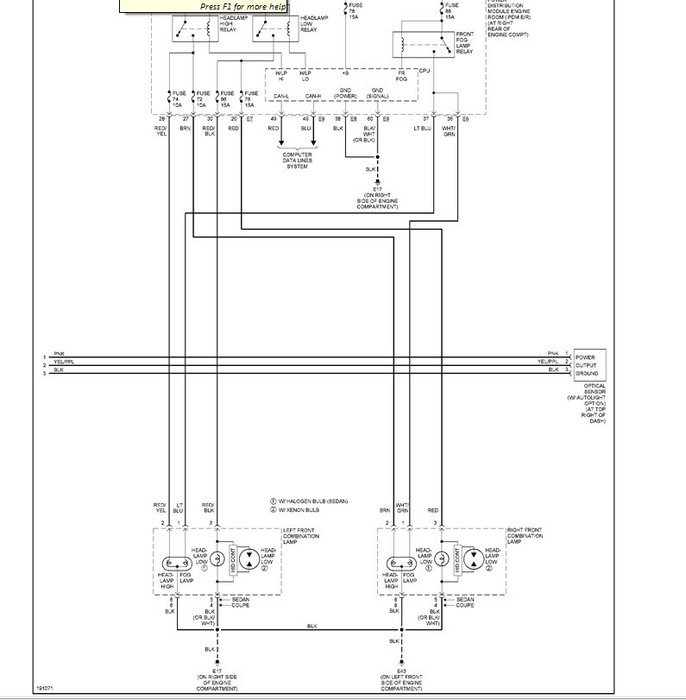
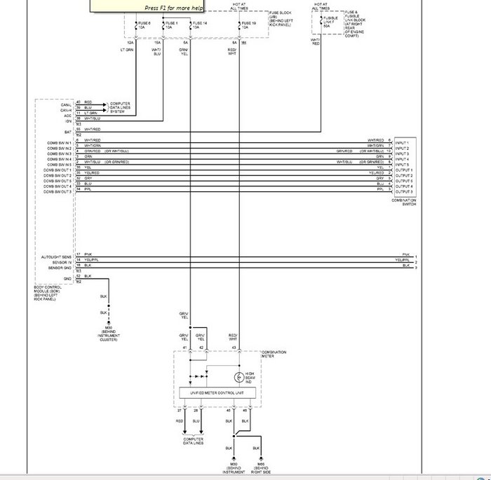
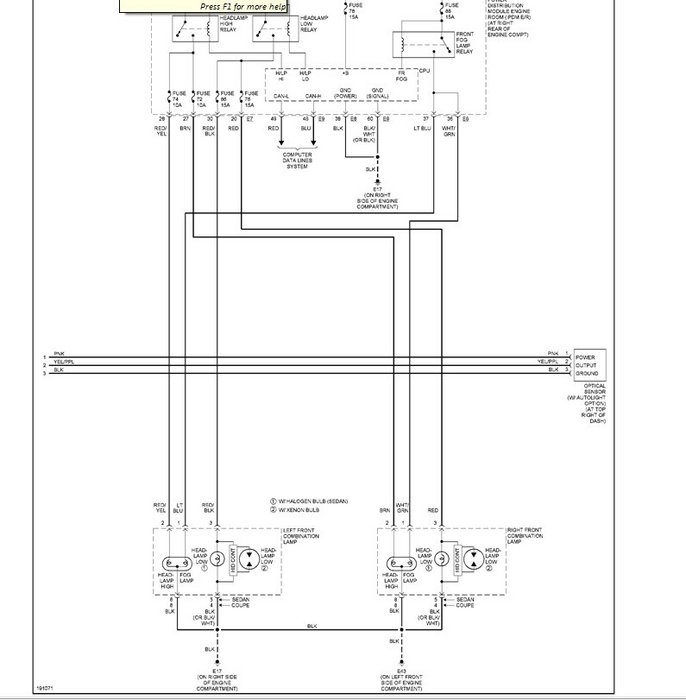
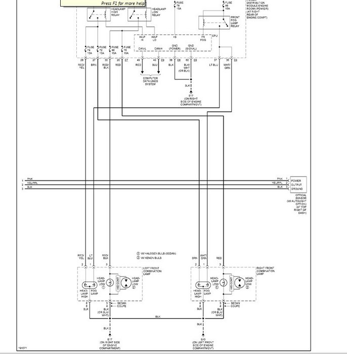
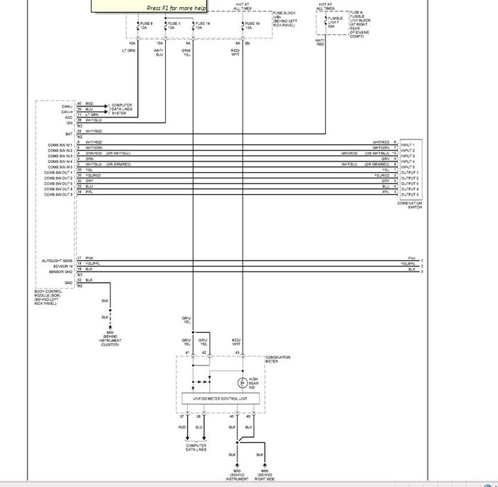
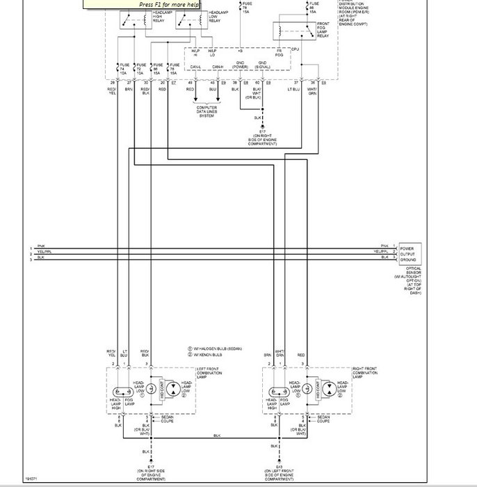
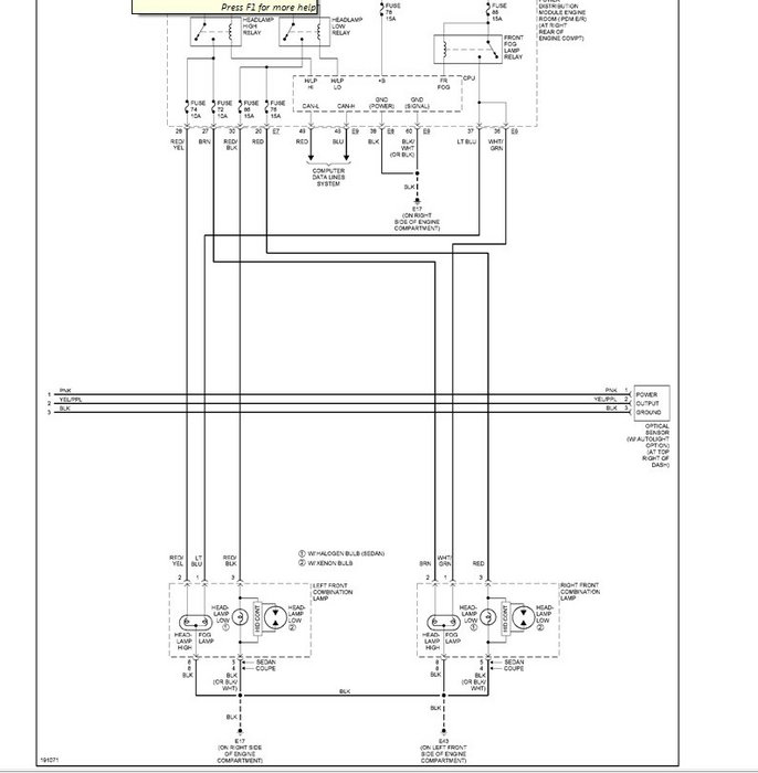
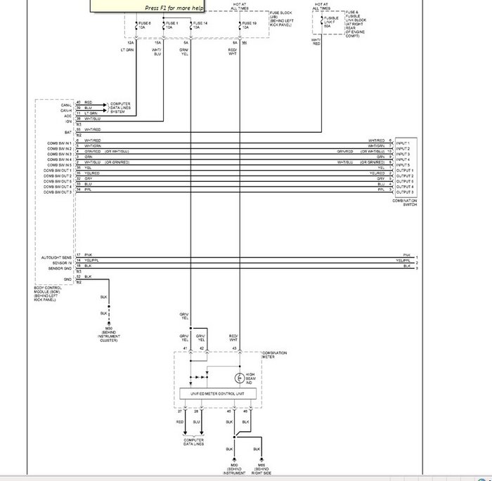
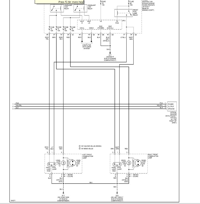
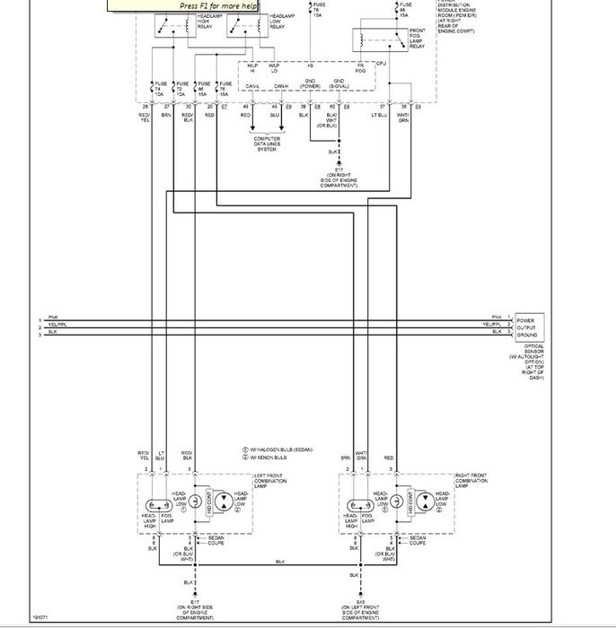
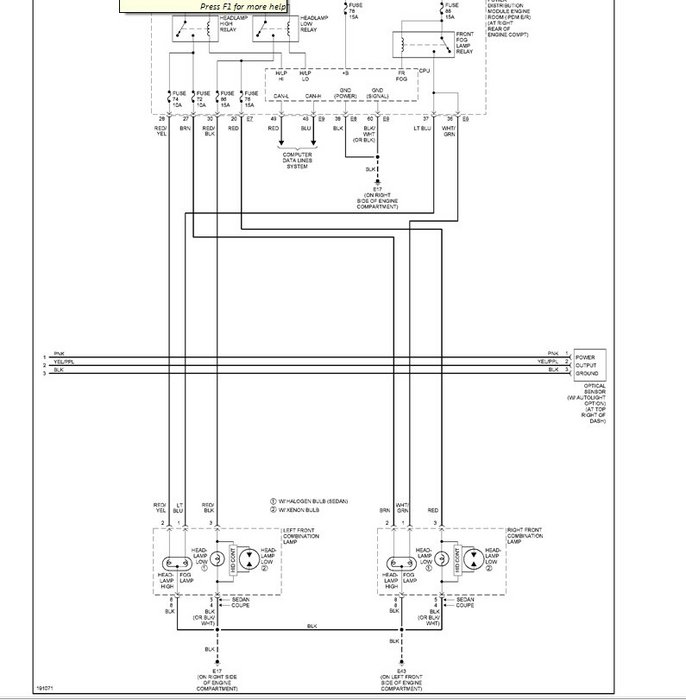
As far as the headigt working and not working. If both the low and high beam are failing together and work at the same time, the ground is loose or the ground wire broken. I am giving you 2 diagrams that show ground points and where they are for the headlights.
Was this
answer
helpful?
Yes
No
Tuesday, November 22nd, 2011 AT 1:56 AM
Tiny
STI402
  • MEMBER
  • 5 POSTS
Hey DC thank you, its only the low beam and I think its cause I lost the cover attached to the front bumper, so water and mud are getting to it, as for the engine its a 2004 G35x with a 3.5L AWD. I am very A. Bout makin sure I change my oil every 3000 miles, when the tapping happened I stopped at the gas station and since I didnt know what the problem I kinda assumed it was the oil and I told the clerk he suggest I use 10w30 but online it says 5w30 is better in the cold, yet should I just completely switch to synthetic oil. I used to only have brand new cars but I wasnt good with money and have to start my life slowly so I bought this car and I am dumb when it comes to fixing things in cars im just now learning ur help was very good to me and I appriciate it.
Was this
answer
helpful?
Yes
No
Tuesday, November 22nd, 2011 AT 4:58 AM
Tiny
DRCRANKNWRENCH
  • MECHANIC
  • 3,380 POSTS
You are very welcome. I am sorry I did not think of this before as the 3.5L engine is notorious for having tapping noises. The reason for this is the variable cam timing system. It has 3 timing chains, 1 primary and 2 secondary timing chinas, (one chain for each bank of cylinders), 2 timing chain tensoiners and 2 solenoids that hadle the variable camshaft timing. With the mileage on your car this noise is very common and I have heard engines that sound like a sewing machine that were not maintaned as they should have been. So, your car at least had some decent maintenace schedule as adding a little oil can make a difference in pumping up the tappets, keeping the timing chain tensioners against the timing chain so the slack is correct and feeding the solenoids so the timing stays where it is supposed to. So, you can breath a sigh of relief as the worst case scenarios are unlikely if you are keeping up on the oil level and the oil change schedule. Many people do not follow the, "Harsher Usage" schedule as it usually denotes living in a dusty area or other similar situations, but I believe it mentions stop and go driving. This is a huge factor in maintenance. In my opinion, if you are not spending 90% of your driving time on the highway at highway speed you must use the shorter interval schedule. I personally just follow it no matter what especially with the 3.5L as it is so picky with all the top end parts that are hydraulically driven. So, there are a few rules to keep in mind when changing the oil;
Do not use anything but 5W30 unless you are in a sub-tropical climate. The holes that the oil has to pass through and tolerances for the camshafts and bearings are far too small for a 10W30 oil as start up is a very critical moment in keeping the 3.5L going for a long time. Oil has to get through passages quickly in order to prevent damage at this time.

For the above reson, always use either an OEM filter or Mobil 1 and K&N make good filters. The reason I reccomend these are that they have good anti-drainback valves. This is critical for keeping oil in the top end while the engine sits in between periods when it is not running. Fram filters are one of the worst as some do not have an anti-drainback valve when they should and when they do it is poor quality.

Synthetic oil is a good idea for the 3.5L engine. This is because it does not change viscosity and flows faster at any temerature than petroleum oils without sacrificing protection. In fact, for this reason start up is protected much more with a synthetic even at mild temperatures. The next time you are at a parts sore, compare a petroleum 5W30 to a synthetic 5W30. You will notice the synthetic is thinner. The viscosity of petroleum oil will be about the same but not until operating temperature is reached and the synthetic will stay the same. So, you are better protected during warm up as well as genral operation. In fact synthetic oil can add some horsepower and give you better gas mileage. Some racing teams found out in the days when Amsoil and Mobil 1 were the only ones on the market that engines in dragsters would get up to 20+ horsepwoer and run a tenth+ second quicker in the quarter mile. The change is not as dramatic in your car, but it is there. You will get more miles out of your car and it will keep the tapping noises quieter as well as prevent them from getting worse.
If you use a synthetic the Mobil 1 filter is best but the K&N is a good filter as well and both have OEM or better quality anti-drainback valves. An OEM filter is fine, but you can get some extra miles with the Mobil or K&N. If you are going synthetic it also tends to keep the engine cleaner and remove finer particles and the Mobil and K&N filters remove much finer particles than an OEM filter.
Even though it is not brand new it will still benefit from a synthetic, but it will still loose oil as it is so slippery it tends to get past the piston rings sometimes and does not burn but will go out the exhaust.
I too have money issues and have lost new cars and I have a 1990 Integra. I did put a 1998 Integra GSR engine, tranny and electronics in it so it is more of a 1998 in a 1990 body. It is a Japanese Domestic Market, JDM motor as well and has around 20,000 miles on it. In Japan the engines do not have emissions stuff on them but there is a law that makes you get a new engine or car at 30,000 miles. So, low mileage engines are abundent but going fast as the market demand is high. There is a JDM version of your motor but they are hard to find. It is mostly the Hondas that are easy to find and going away quickly. You can find JDM dealers like, Hmotorsonline. Com, that is where I got my stuff and I refer anyone who wants one, who will order a JDM for you and have buyers in Japan that test the motors before shipping them.
You have a good car and I have seen the Altima 3.5s go 200,000 miles, so your car could make it there easy if you continue to keep the maintenance up.

Take care and come back to see us anytime.

Dr. C
Was this
answer
helpful?
Yes
No
+3
Tuesday, November 22nd, 2011 AT 3:24 PM

Please login or register to post a reply.