Window issues

Tiny
CHARIOTEXP
  • MEMBER
  • 2003 FORD THUNDERBIRD
  • V8
  • 2WD
  • AUTOMATIC
  • 48,000 MILES
Drivers window not working top will not go down. What are the issues and how do I check it?
Saturday, July 23rd, 2011 AT 3:40 PM

1 Reply

Tiny
WENDY W
  • MECHANIC
  • 86 POSTS
Hello!

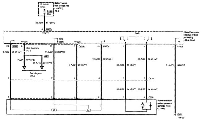
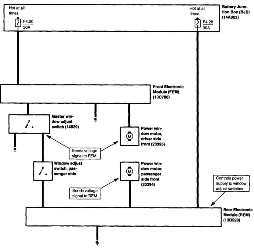
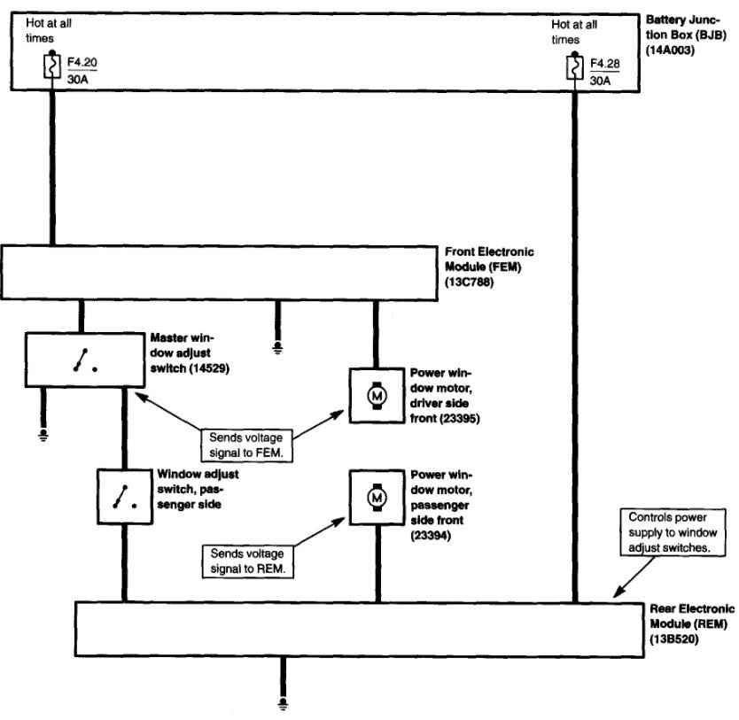
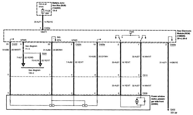
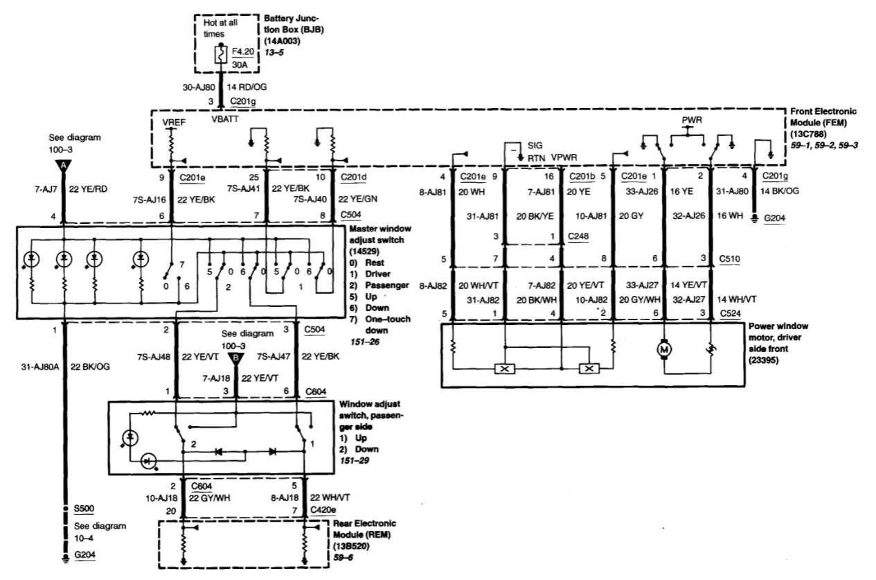
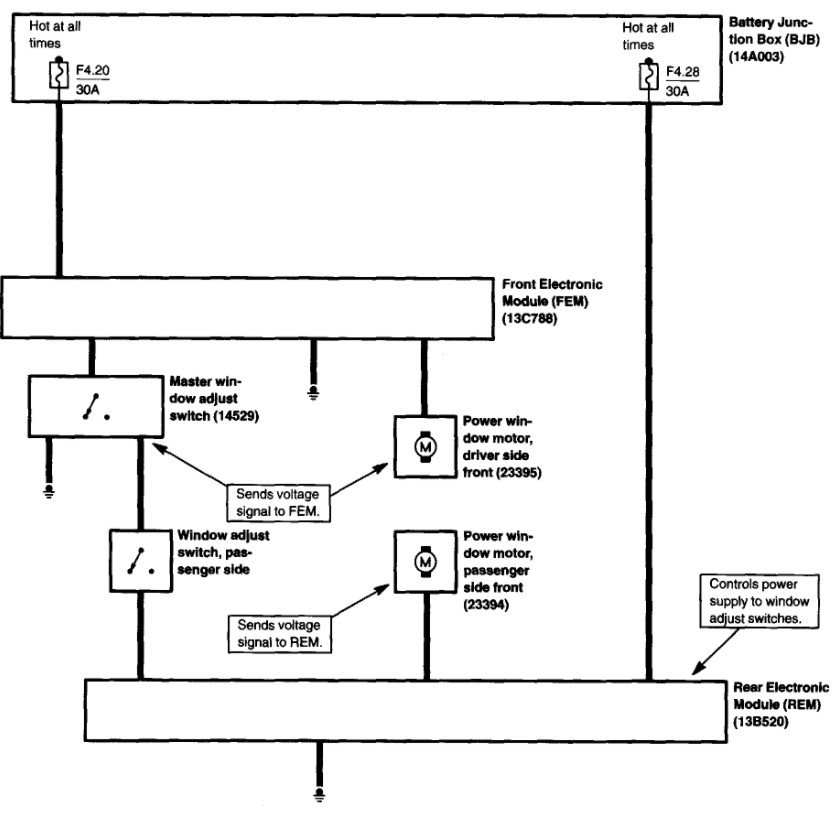
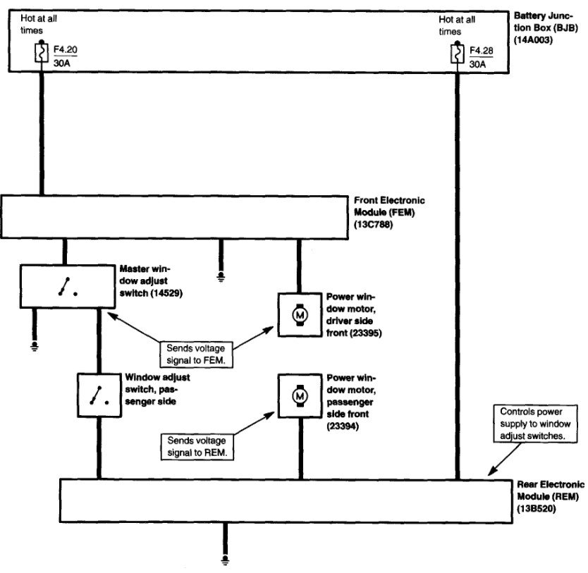
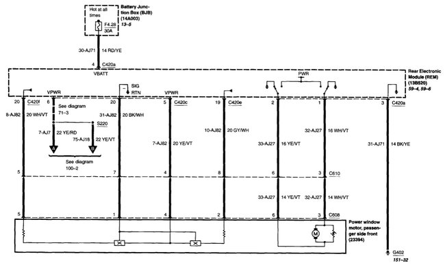
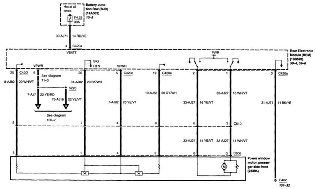
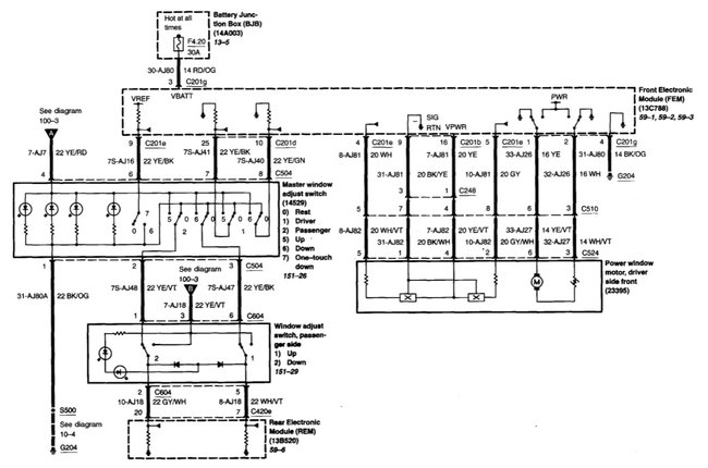
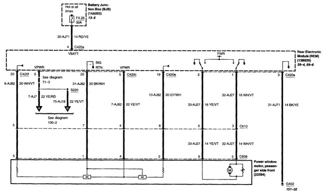
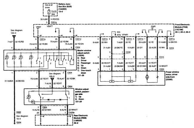
If I understand your question correctly, it seems like your driver's side window will not roll down at all. This could have several causes. First, you may want to confirm that you have power to the Front Electronic Module which communicates with the window switches. This should be fuse 20 in the rear battery junction box (BJB).

If there is no power to this fuse, you can check over the wiring harness to look for any damage that could be causing a short to ground or to another circuit.

If there is power at this fuse, you can check the circuits at the window switch and the window motor. Here are two repair guides that may help you along in this process:

https://www.2carpros.com/articles/electric-window-repair

https://www.2carpros.com/articles/how-to-check-and-replace-a-electric-power-window-motor

Please check out the diagrams I've attached (Below).

Additionally, this video can help provide some troubleshooting tips on how to check the window switch and window regulator assembly:

https://youtu.be/HBFBcJrdym4

On the other hand, if the window is still operational but has lost its short drop calibration, there is a reset procedure you might want to try.

Turn the ignition switch to the "on" position. Next, lower the window completely, and continue to hold the window control switch in the down position for two seconds. Now, raise the window completely and continue to hold the switch in the up position for two more seconds. This sequence should reset the short drop recalibration.

Please let us know what you find, and if we can provide any further information.

Thanks, Wendy W

Was this
answer
helpful?
Yes
No
+1
Tuesday, February 8th, 2022 AT 12:44 PM

Please login or register to post a reply.