Transmission's third and fourth gears are not engaging after transmission extension replacement

Tiny
CMMSR22
  • MEMBER
  • 2000 CHEVROLET SILVERADO
  • 5.3L
  • V8
  • 4WD
  • AUTOMATIC
  • 275,000 MILES
Inside fuse box has no power as well.
Saturday, June 25th, 2022 AT 2:41 PM

5 Replies

Tiny
JACOBANDNICKOLAS
  • MECHANIC
  • 110,192 POSTS
Hi,

I need a little more info. Do any of the fuses in the interior fuel box have power? Also, exactly what was done to the transmission?

Let me know.

Joe
Was this
answer
helpful?
Yes
No
Sunday, June 26th, 2022 AT 9:52 PM
Tiny
CMMSR22
  • MEMBER
  • 3 POSTS
Extension from transmission to transfer case was cracked my truck worked fine until I started it up and couldn't get it into gear. So, I looked under and that's what I found. I've replaced the extension housing and no leaks filled it back up and no third gear it doesn't want to shift. First and second are perfect but can't get to third it tries but can't seem to catch. There is no power to the fuses in the box can't get codes because of it. Thanks for the reply 2000 Silverado 4x4 5.3 LS 246 transmission.
Was this
answer
helpful?
Yes
No
Wednesday, June 29th, 2022 AT 2:30 PM
Tiny
JACOBANDNICKOLAS
  • MECHANIC
  • 110,192 POSTS
Hi,

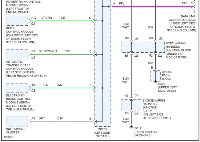
First, I attached the schematic for the DLC. Pin 16 should have 12v at all times. It is powered by the (don't laugh) cigar fuse under the hood. See pics 1 and 2.

Pic 3 shows the location of pin 16 in the DLC. Check for power at pin 16. Note: the purple wire going to pin 2 is a computer data line from the transmission.

Also, check pin 4 for continuity to ground.

_______________________________

Also, let me know if the fuse box in the vehicle which you are checking is on the left or right side of the vehicle. There is a body wiring harness junction block (right side) and a fuse block on the left.

I went through a few different power distribution wiring schematics, and from what I can find, power to the interior fuse box (left side) comes from the ignition switch. However, that just doesn't seem correct to me, so I am going to continue looking.

Let me know what you find.

Joe

See pics below.
Was this
answer
helpful?
Yes
No
+1
Wednesday, June 29th, 2022 AT 10:40 PM
Tiny
CMMSR22
  • MEMBER
  • 3 POSTS
Thanks for the reply! I'm going to check the things you referred to this Saturday. I feel very confident your going to help resolve this issue and bring my truck back to life. Thanks again.
Was this
answer
helpful?
Yes
No
Friday, July 1st, 2022 AT 4:58 AM
Tiny
JACOBANDNICKOLAS
  • MECHANIC
  • 110,192 POSTS
Hi,

You are very welcome, and I promise I will try my best to help get it going again.

We need to determine if the fuses to the DLC are good. I also need to determine where all power to the interior fuse box comes from the ignition switch.

Let me know what you find, and I hope you have a great 4th.

Joe
Was this
answer
helpful?
Yes
No
Friday, July 1st, 2022 AT 8:29 PM

Please login or register to post a reply.