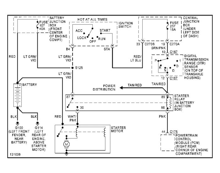
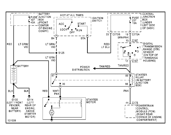
When it won't start it acts like the starter gets no power. It does not turn over or make any noise from the starter. (I tried wiggling the auto gear shifter and jiggling the key. Neither did any good.) I hear a clicking sound behind the radiator in what looks like a fuse box. The positive battery cable goes to this box. It makes the clicking sound when it starts and when it acts up. The clicking is when the key is turned to start.
I worked on cars in the 70's until now so I know a little about almost everything except the computers. Does it have a solenoid that is separate from the battery? That is what it acts like. I hope someone is familiar with this car!
The starter does not crank or make any noise when it is acting up. When it starts it sounds normal and does not seem to drag or make any unusual sounds. When it acts up it always starts after a little while. The problem is intermittent and the car has started fine for 4 days without a hitch. I have been called several times when the car had problems and this is the first time it did it to me. This is the wife's car. Usually she calls and then calls me back a short while later and tells me the car started. It is not a hot weather problem. It happened in the winter and first thing in the morning a couple times. My first thought is the starter solenoid is the problem. Can anyone help?
Saturday, June 2nd, 2012 AT 3:04 AM


