window wiring diagrams?

1998 PONTIAC GRAND PRIX
Avatar
HOLLYWOOD0260
  • MEMBER
  • 1 POST
The control for the driver side window went out but it has two switches.
Apr 5, 2012 at 7:38 PM
Repair Safety Notice: This information is for general instructional purposes only. Vehicle repair can be dangerous. Verify all information, follow manufacturer service procedures, use proper tools and safety equipment, and consult a qualified repair shop when needed.
Advertisement
Avatar
RASMATAZ
  • CAR REPAIR CONTRIBUTOR
  • 75,992 POSTS
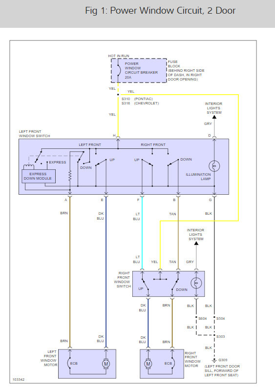
Check and test the driver's side switch-if you want open it up and disconnect the window motor and apply power and ground to it-the window will either go down or up.

Here is a guide that shows you how to bypass the switch to work the motor:

https://www.2carpros.com/articles/electric-window-repair

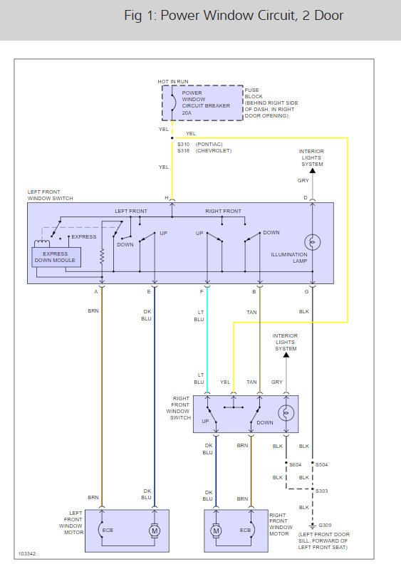
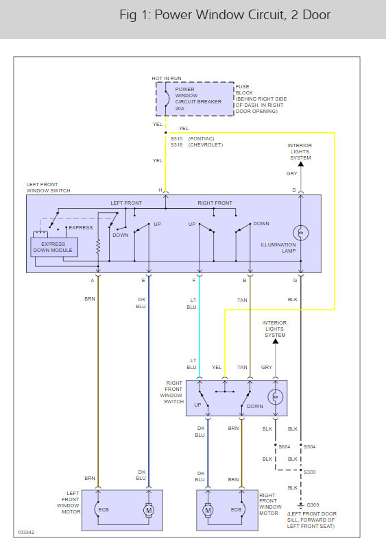
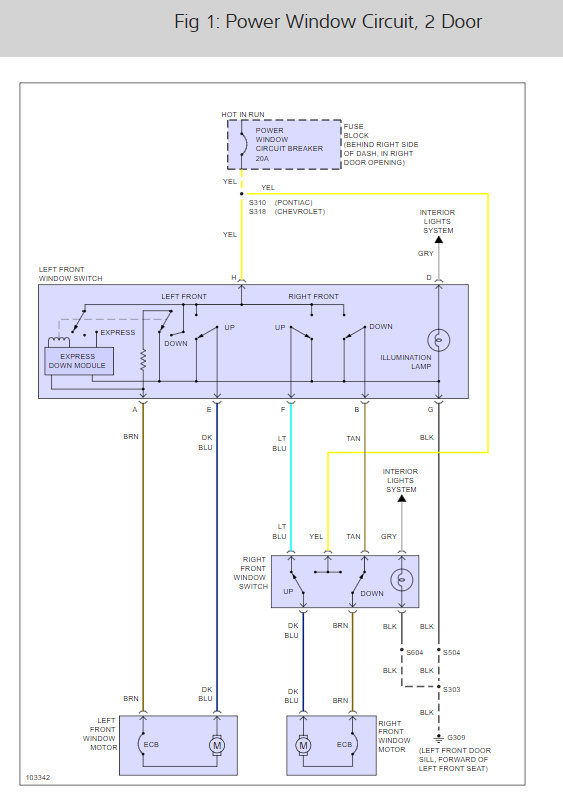
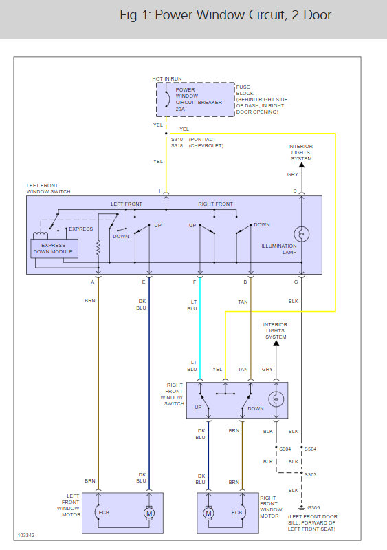
Here are the wiring diagrams so you can see how the system works. Brown and dark blue or the motor wiring colors you want to ground and put power down. Connect two small jumper wires to the motor connector's terminals, connect the other end of one of those jumper wires to ground, (a paint-free spot on the body), then touch the other end of the second wire to the terminals in the switch connector, one at a time. When you touch the one with constant 12 volts, (ignition switch on), the window motor will try to run. If it runs the wrong way or is already all the way down, switch the two wires around on the motor connector, then try again. That will make it run the other way.

Check out the diagrams (below). Please let us know if you need anything else to get the problem fixed.

Cheers
Apr 5, 2012 at 7:53 PM
Advertisement