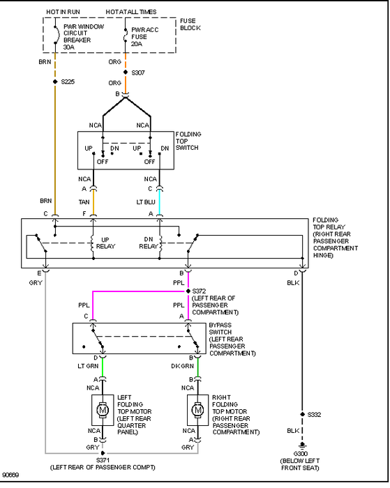
I have a Cavalier Convertible LS 2.4 and it's a great little car. My late husband bought it for me new and it has been wonderful and a lot of fun to drive. It has just started having a problem with the top not going up and down correctly. Most of the time, it won't go up or down at all but then if I continue moving the lever it will usually go up or down. When I take it to the mechanic it works fine for him and he thinks I'm crazy. :-)
When it does work the driver's side will start down normally and it seems to drag the passenger side down with it. Then when it is down, the passenger side sits about 6 inches higher than the driver's side. When it goes up, the driver's side goes up and seems to pull the passenger side up with it. The top edge on the driver's side lines up perfectly when the top closes but the passenger side has at least a 1/2 inch gap so you have to pull down on the top to close the lever.
Any suggestions would be greatly appreciated. I'm working in Costa Rica right now, no jobs in the US, and I brought the car with me. My mechanic has never worked on a convertible top before. So please be specific in your answers as we both need to understand them.
Maybe this is something to be considered, or maybe not. I had to change the battery since I moved here. I changed it about 4 months ago and this problem didn't occur until about a month ago Everything here is very cheap quality at a very high price. I'm wondering if the battery is not strong enough to power the top correctly. The battery is an Energizer EP-75-650 cca 650a ca810a cr95min 12V.
Thanks for your help, morlaine
When it does work the driver's side will start down normally and it seems to drag the passenger side down with it. Then when it is down, the passenger side sits about 6 inches higher than the driver's side. When it goes up, the driver's side goes up and seems to pull the passenger side up with it. The top edge on the driver's side lines up perfectly when the top closes but the passenger side has at least a 1/2 inch gap so you have to pull down on the top to close the lever.
Any suggestions would be greatly appreciated. I'm working in Costa Rica right now, no jobs in the US, and I brought the car with me. My mechanic has never worked on a convertible top before. So please be specific in your answers as we both need to understand them.
Maybe this is something to be considered, or maybe not. I had to change the battery since I moved here. I changed it about 4 months ago and this problem didn't occur until about a month ago Everything here is very cheap quality at a very high price. I'm wondering if the battery is not strong enough to power the top correctly. The battery is an Energizer EP-75-650 cca 650a ca810a cr95min 12V.
Thanks for your help, morlaine
Nov 1, 2012 at 9:56 PM
