backup lights

1995 DODGE SPIRIT
246,000 MILES • 4 CYL • FWD • AUTOMATIC
Avatar
MIKENJUDY
  • MEMBER
  • 7 POSTS
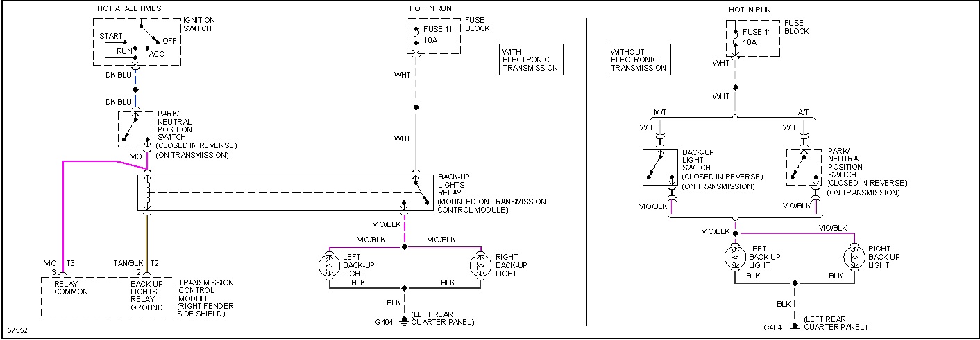
95 dodge spirit.. no reverse lights...both bulbs are new..fuse is good.. any thoughts? thanks
Jan 26, 2011 at 3:50 PM
Repair Safety Notice: This information is for general instructional purposes only. Vehicle repair can be dangerous. Verify all information, follow manufacturer service procedures, use proper tools and safety equipment, and consult a qualified repair shop when needed.
Advertisement
Avatar
JDL
  • CAR REPAIR CONTRIBUTOR
  • 16,098 POSTS
There are two diagrams in the link, with and w/o electronic transmission. The violet wire with black tracer is voltage for reverse lite. Black is ground. Check the applicable fuse, also check neutral switch.
Jan 26, 2011 at 4:37 PM
Advertisement
Avatar
CARADIODOC
  • CAR REPAIR CONTRIBUTOR
  • 34,308 POSTS
Hi guys. Here's an easy way to check the neutral safety switch. Turn the ignition switch on. You can leave the transmission in park. Unplug the switch at the front left corner of the transmission. There are three wires in a straight row. Connect the two outer wires with a stretched-out paper clip or cotter pin. Watch closely. If you see a tiny spark when you move the paper clip around, you know current is flowing and it has to be going to the backup bulbs. If you need further proof, run in back and look at the lights. They will be on. A defective switch is somewhat common and is a very inexpensive repair.

caradiodoc
Jan 26, 2011 at 5:50 PM