Tuesday, July 10th, 2012 AT 5:50 AM
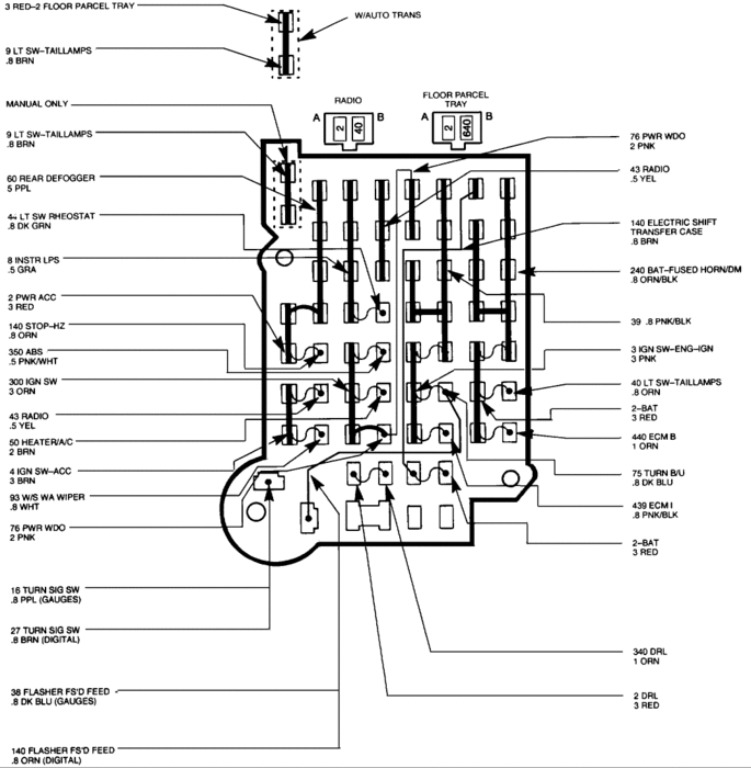
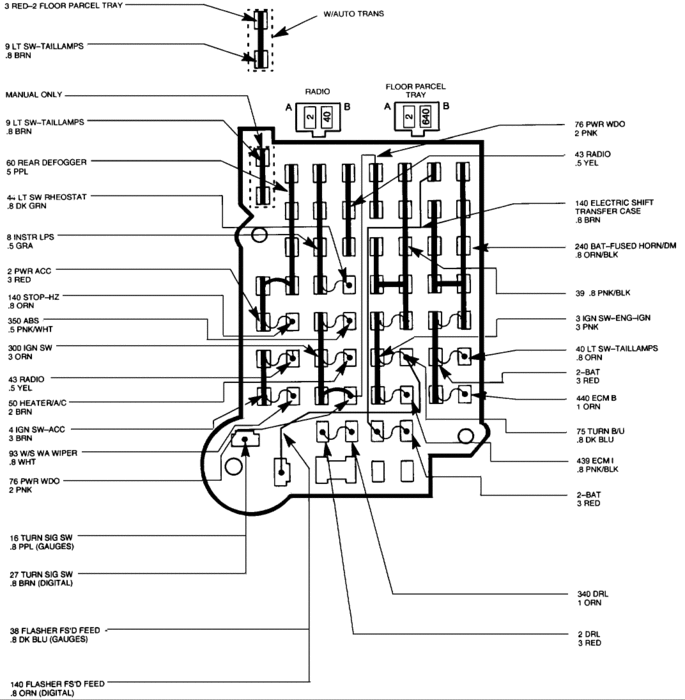
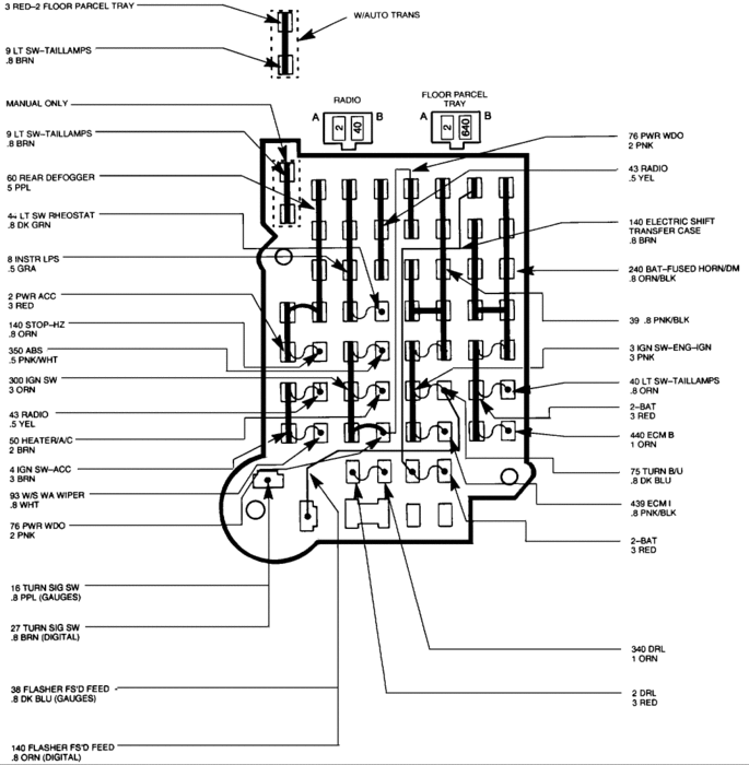
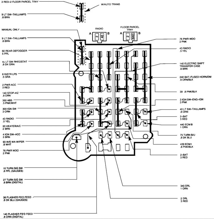
Hey got a question, hopefully someone can help.I have got a 95 Blazer LS and the person who had it had a aftermarket stereo system in it. When he took the stereo out I am assuming he just yanked the wires apart where he had it spliced together and now I have 2 sets of wires. 1 set (7 wires) coming from under the dash and 1 set (5 wires) coming from ignition harness, k now the ignition harness wires are as follows ---> pink-n-white, white, orange, orange, purple, gray, gray-n-black. And now the wires from under the dash is as follows > white, brown, orange, purple, purple. I have gone through Chilton's / Haynes books and scoured the internet etc, but I myself don't understand on how to read the diagrams I have come up with. Its getting frustrating as heck. Need these wires hooked up the right way because they affect Brake, Tail Lights and Power Seat, Mirrors Etc. With out everything hooked up right we are unable to get a inspection sticker. Any advice or help would be greatly appreciated. Thanks In Advance.




