93 Jeep Wrangler ALT fuse

Tiny
BUDDYS101
  • MEMBER
  • 1993 JEEP WRANGLER
  • 6 CYL
  • 4WD
  • MANUAL
  • 130,000 MILES
I have had my 93 jeep wrangler 4.0 for about a year. When I first took it home, I had an electrical problem. The previous owner, had just replaced Battery, Alt, and Starter. Before I traveled 50 miles, it stopped running. I found that the 50 amp alt. Fuse had blown.
Every time I replaced it, it would blow again. I finally changed the battery terminal ends, and cleaned the ground connections, problem solved. Until today, this morning I left the headlights on, to find the battery dead at the end of the day. Now, I am having the exact problem as before. I am puzzled, because I have driven about 12,000 miles without any problems. HELP PLEASE.
Wednesday, May 18th, 2011 AT 2:13 AM

1 Reply

Tiny
CJ MEDEVAC
  • MECHANIC
  • 11,005 POSTS
I'm not really up to snuff with new stuff, I have a '77 CJ5 and a '46 Willys, My expertise is CJs and older Fords.

I saw you had been here a while and I have passed you over hoping a "Cyber" (new car guy) Expert here could help you.

Throwing you a bone, I do have access to a "High Speed" Online Repair manual, one of the perks from doing this!

Bad thing is, it's complicated, and I have no formal training with it.

I spent a few hours trying to figure out you problem in the manual.

So far this is about all I got---in "Country-fied Terms"

SOMETHING IS WRONG WITH THE ALTERNATOR!

SOMETHING ABOUT A BRIDGE?

A SHORT

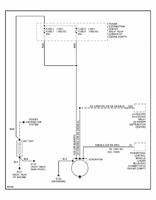
Cool thing though is, I was able to get you a charging diagram there!

It may appear small and unreadable here, but if you will click on me or my avatar. Send me a message w/ Email address I will send you it there, It may be more legible. Don't broadcast your address in this post!

Don't fret. Others can still jump in, and help you!

I'm sorry I am not doing so well, But I thought something/ anything might maybe do something for you, in a timely manner.

Keep me/ us informed on your findings, I still learn too!

The Medic
Was this
answer
helpful?
Yes
No
-1
Wednesday, May 18th, 2011 AT 3:42 AM

Please login or register to post a reply.