89 XJS ran fine now dosnt start injectors not opening? IM stuck is my only car please help

Tiny
89XJSMAZDAMAN
  • MEMBER
  • 1989 JAGUAR XJS
  • 110,000 MILES
Bought this car recently had hole in gas tank I fixed the tank cleaned it replaced it car then started but the fuel pump always stays on cycling but it worked fine fired right up started everytime for me after that I drove it 70 miles to get inspected done and after leaving there it started rough but started and leveled out I drove to a friends stayed 15 min car barely started its trying but seemed flooded so I got it home discovered gas in both vac lines to the regulators I replaced both regulators and fuel filter turnt key on and trued to start it turns but didnt even try to fire I found about 8 ground wires on both sides of the radiator at top groups of groynd wires were loose both sides I tightned em and fired up I figured was flooded but 2 days later I go out it fires right up I was like cool ok. Everything worjed seened fine I let it warm up fully heat and all I shut it off and restarted like 4 times and one being 10 min inbetween it fired right up I drove it to a friends house and ten min later wouldnt start At all fifured flooded again so let it sit for a whole day and still nothin it turns over all lights work has fuel psi no gas in vac lines gas psi in rails can hear it returning to tank if I listen I sprayed starter fluid in both sides to check for spark it fires right up so is efi ground issue? Or the ecu? Any help is greatly appreciated im low on $ and this is my only car at moment 7174199811 and replys or call would be helpful would like to have my car for the new year have a kid and all I need help just is too nice a car to junk great shape but keep having these issues ever since I tightned them wires it all worked then just wouldnt starts has spark and all like I said just no life or gas of its own names ed ar rotary custom please please help happy new year god bless
Thursday, December 29th, 2011 AT 12:10 AM

1 Reply

Tiny
HMAC300
  • MECHANIC
  • 48,601 POSTS
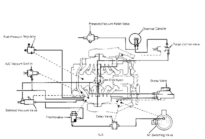
Check the fuel pressure it should be 36 psi. Make sure your grounds that you tightened are clean as well as tight. Also there should be a good ground to body and engine. If you can spray choke cleaner in engine then it's probably a fuel problemif not it's ignition. Check primary coil resistance it should.9-1.1 ohms. If you dont' know how to do it, it is listed under repair on the site here. Injector resistance is 2.4 ohms at room temp. Also check for auxillary air valve malfunctionalso check the map sensor or if it has a vacuum line going to it check that for beign soft andcollapsing.
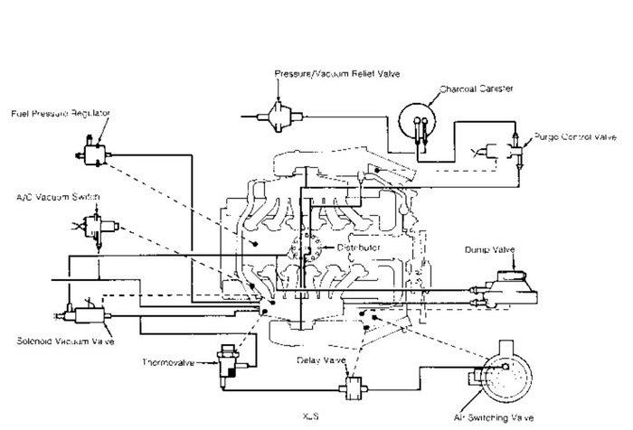
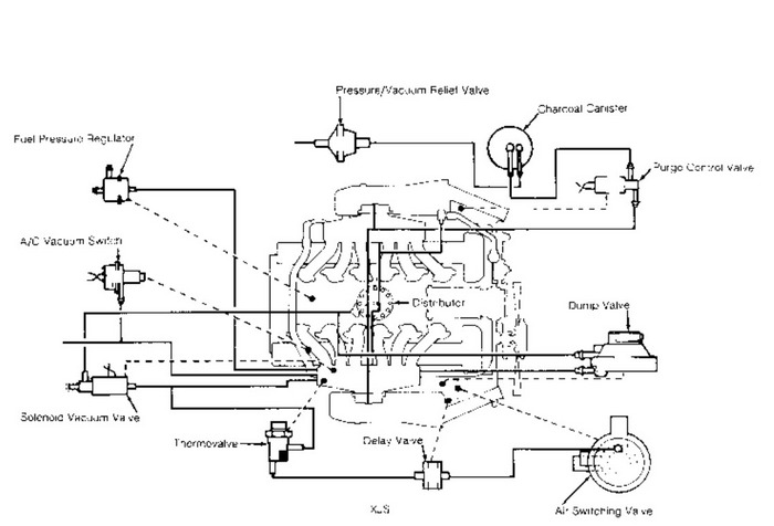
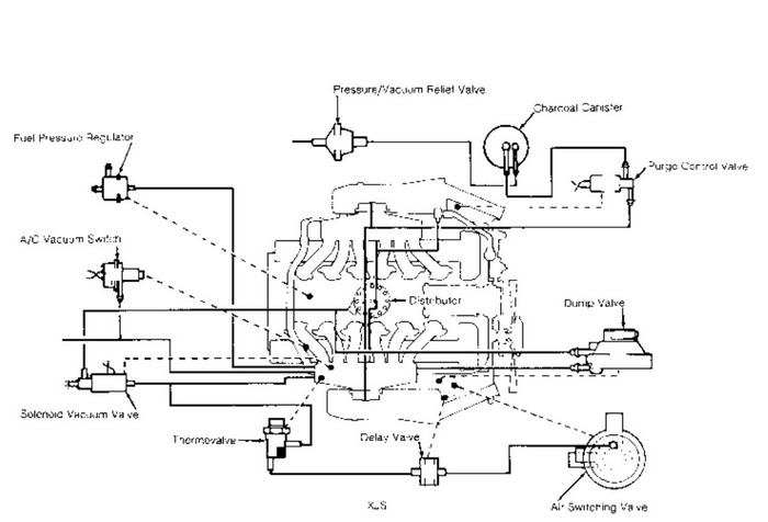
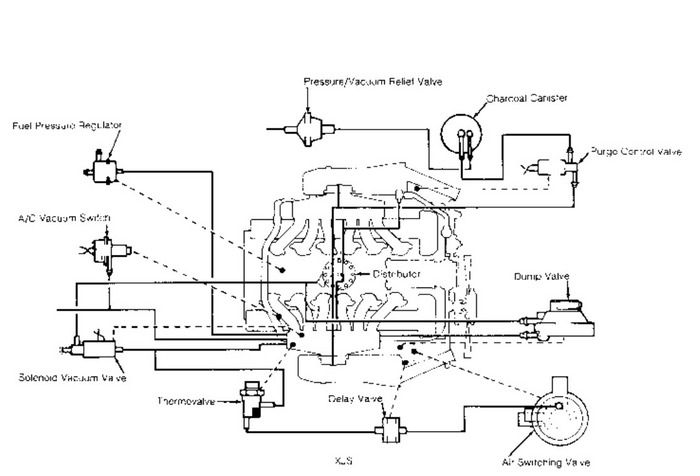
FUELÂ CONTROL

CAUTION: This test results in fuel vapor being present in engine compartment. All necessary precautions against fire or explosion should be taken.

XJS Cold Start System Test

Remove 2 set screws and washers retaining cold start injectors in intake manifold. Remove the start injectors and place them in a container to collect sprayed fuel. Disconnect distributor lead from the coil.

Engine Temperature Below 59°F (15°C)

1. Turn ignition on and check the cold start injectors for any leakage. Crank the engine for a few revolutions. Injectors should spray while engine cranks. DO NOT operate starter any longer than necessary.
2. If injectors do not spray,  crank engine and check for battery voltage at cold start injector supply (White/Pink) cable. If voltage is present,  check ground connections and wiring harness connectors at cold start
injectors. Repair as necessary. If no defects are found,  injectors are faulty and must be replaced.
3. Crank engine and check for battery voltage at terminal No. 87 of cold start relay. If voltage is present,  check wiring harness between relay and cold start injectors and repair as necessary.
4. Crank engine and check for battery voltage at terminal No. 30 of cold start relay. If no voltage is present,  check supply wire from pump relay and repair as necessary. If voltage is present,  relay is not being
energized or contacts are faulty.
5. Crank engine and check for battery voltage at terminal No. 86 of cold start relay. If voltage is present,  relay is not being energized or contacts are faulty. If no voltage,  repair supply wire from starter circuit.
6. Crank engine and check for battery voltage at terminal No. 85 of cold start relay. If voltage is present and relay is not energizing,  there is a problem with thermo time switch circuit. Disconnect wiring harness from
terminal No. 85 and jump terminal No. 85 to ground. Relay should now energize. If not,  relay is faulty and must be replaced.
7. If relay energizes,  check for battery voltage at terminal No. 87 of cold start relay. If no voltage is present at terminal No. 87,  the contacts of relay are faulty and relay must be replaced. Reinstall cold start injectors
and all cables or connectors.

Engine Temperature Above 59°F (15°C)

1. Crank engine and check voltage at terminal No. 87 of cold start relay. Voltage should be 0 (zero) volts. If battery voltage is present,  remove wiring harness connector from terminal No. 85 of the cold start relay.
2. If voltage is 0 (zero) volts,  the thermo time switch is at fault and must be replaced. If battery voltage is still present at terminal No. 87 after disconnecting terminal No. 85,  replace cold start relay.
3. If cold start injectors pass fuel when no voltage is present at terminal 87,  the injectors must be replaced.
Was this
answer
helpful?
Yes
No
+2
Thursday, December 29th, 2011 AT 1:10 AM

Please login or register to post a reply.