HOME
ASK A QUESTION
REPAIR GUIDES
BECOME A MEMBER
LOG IN
Login with Facebook
OR
Remember me
NOT A MEMBER?
FORGOT PASSWORD?
CONTACT US
PRIVACY POLICY
TERMS AND CONDITIONS
☰
Home
Nissan
Pathfinder
Drivetrain
Transmission
Pan
Wire plug?
RUSS1984
MEMBER
1988 NISSAN PATHFINDER
What is the name of wire connecter that plugs into the side of a 1988 nissan pathfinders automatic transmission pan
Monday, October 10th, 2011 AT 2:34 AM
3 Replies
JACOBANDNICKOLAS
MECHANIC
110,176 POSTS
There is no specific name for just a plug. What is it going to?
Was this
answer
helpful?
Yes
No
Monday, October 10th, 2011 AT 2:35 AM
RUSS1984
MEMBER
22 POSTS
It runs up and plugs in to the fuses in the fuse box under the hood on the passenger side
Was this
answer
helpful?
Yes
No
Monday, October 10th, 2011 AT 2:36 AM
JACOBANDNICKOLAS
MECHANIC
110,176 POSTS
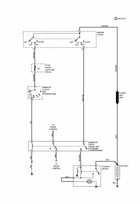
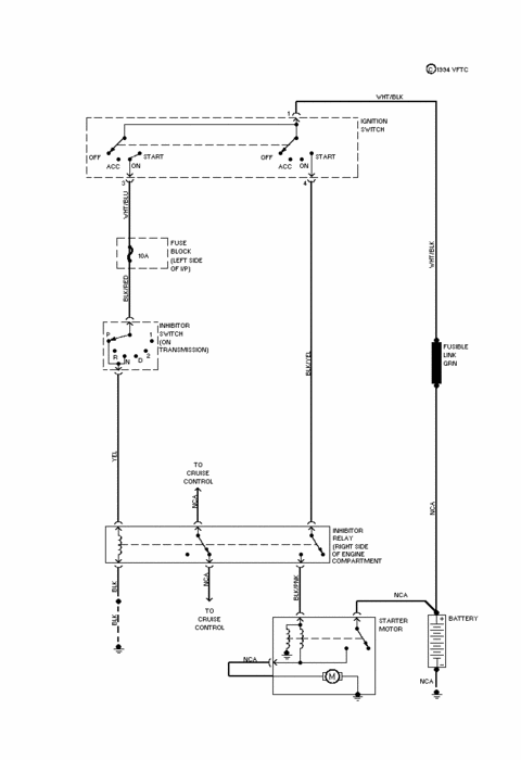
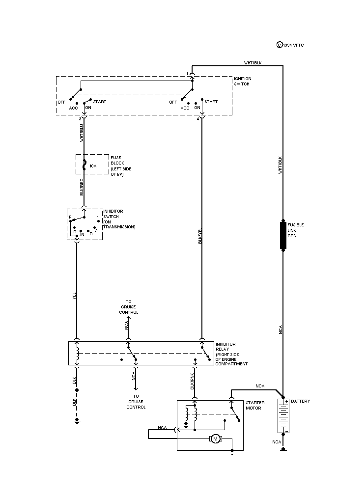
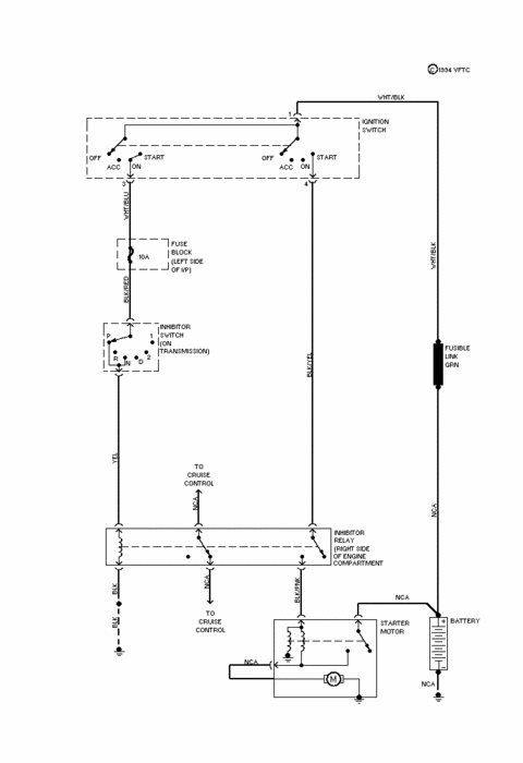
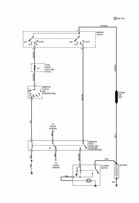
I think you are refering to the inhibiter switch. See attached wiring schematic.
Image (Click to make bigger)
Was this
answer
helpful?
Yes
No
Monday, October 10th, 2011 AT 2:45 AM
Please
login
or
register
to post a reply.
Related Transmission Pan Content
1988 Nissan Pathfinder Signs Of Transmission Problems...
Hi - My '88 Nissan Pathfinder Has Had A Problem In Cold Weather With Shifting To Highway Speed. I Have To Go About 3 Miles Or So Before It...
Asked by
oxmyx
·
2 ANSWERS
1988
NISSAN PATHFINDER
2010 Nissan Pathfinder Transmission Cooler
This Trucks Has The Issue Of A Bad Radiator. Usually The Radiator Coolant Contaminates The Transmission And The Transmission Goes Bad. I Was...
Asked by
C_7Ronaldo72014
·
1 ANSWER
2010
NISSAN PATHFINDER
Automatic Transmission Service
1999 Pathfinder 3.3 4wd Recently I Feel Some Jerk Between 1st And 2nd Gear. I Want To Exchange Transmission Fluid And Filter By My Self...
Asked by
maclion
·
1 ANSWER
NISSAN PATHFINDER
Transmission Wont Engage In D. Reverse, 1 And 2 Engage...
What Do You Figure Is The Problem, Solenoids Seem Like An Idea? It Just Happened As I Reversed Out Of A Parking Spot, Went To Put In In D...
Asked by
jongarland
·
2 ANSWERS
1 IMAGE
1991
NISSAN PATHFINDER
1995 Nissan Pathfinder Driving
My Problem Is That It Shifts Fine But It Seems Like It Won't Shift Into Overdrive. It Runs At 3000 Rpm Before It Shifts And Is Very Slow To...
Asked by
Jbusy3
·
3 ANSWERS
1995
NISSAN PATHFINDER
VIEW MORE
Ask a Car Question. It's Free!
Transmission Service 65RFE RAM 1500 2013-2022
Automatic Transmission Service
Transmission Filter and Fluid Replacement