1987 Chevrolet Nova key switch

Tiny
KEVIN40962
  • MEMBER
  • 1987 CHEVROLET NOVA
  • 156,000 MILES
I had my key switch replaced at a garage and it started good for a while, then one day I went to start it and when I put the key in it wouldn't even try to crank. All the lights light up like they are supposed to when u start the car and I could hear the fuel pump kick in, but when u turn the key it won't make a sound. I waited about 5mins and tried it again and it did fine. It started and I went off to work with no issues. Now it will do this ever five to six days. Got any ideals of what to check or look at?
Monday, October 28th, 2013 AT 3:01 PM

2 Replies

Tiny
CJ MEDEVAC
  • MECHANIC
  • 11,005 POSTS
THIS ISSUE MAY OR MAY NOT BE RELATED TO THE IGN SWITCH

YOUR STARTER COULD BE GOING BAD......OR IT COULD BE ANOTHER COMPONENT IN THE SYSTEM.....LIKE A RELAY OR ANOTHER SWITCH

THIS VERY WELL COULD BE EZ TO FIX!.........WITHOUT GOING TO A STEALERSHIP OR OTHER EXPENSIVE SHOP

MAYBE EVEN A BAD OR LOOSE CONNECTION......I'D INVESTIGATE THAT 1ST, BEFORE THROWING MONEY AT IT.......THE LINK BELOW MAY HELP YOU "GET ON IT"....INSPIRE YOU...MAKE YOU DIG MORE THAN NORMAL........I EVEN MADE SOME PICS AT THE END.....SEE MY ANSWERS IN HERE

https://www.2carpros.com/questions/1996-chevrolet-tahoe-wont-start-sounds-dead-battery-jumpbox-get-same-reults

WITHOUT MORE INFO...WHICH I REALLY DON'T NEED NOW!

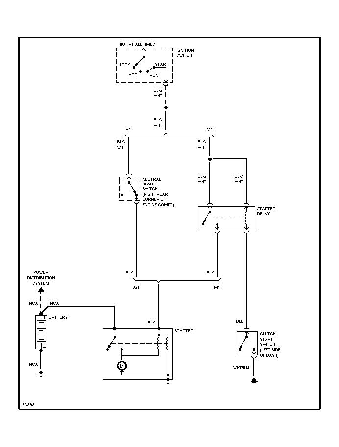
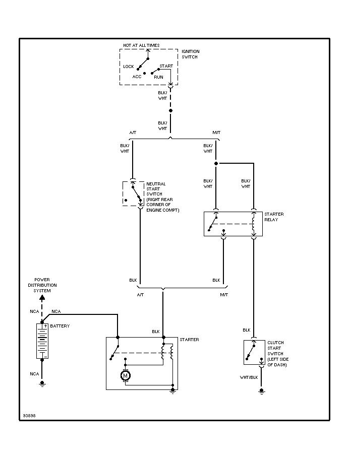
I FOUND A DIAGRAM IN "MITCHELL I" FOR YOUR RIG.........TITLED "STARTING CIRCUIT"

IT'S SORTA A FLOW CHART, YOU'LL SEE IT BRANCH OF BETWEEN "MANUAL TRANSMISSION" AND "AUTOMATIC TRANSMISSION"..........YOU SHOULD BE ABLE TO SEE EVERY SWITCH/ RELAY/ ETC WITHIN YOUR PARTICULAR SYSTEM

.....SOME OF THIS STUFF IS INEXPENSIVE....EVEN SHIFTING AROUND ON AN AUTOMATIC MAY MAKE A "GOING BAD" NEUTRAL SAFETY SWITCH WORK A LITTLE....LOOSE MOUNTS MIGHT MAKE ONE NOT SWITCH RIGHT.....THEN AGAIN IT COULD BE A STARTER RELAY.......SWAPPING IT FOR AN "IDENTICAL TWIN" (THAT RUNS ANOTHER FEATURE) MIGHT LET YOU KNOW IF THE RELAY IS MAYBE THE PROBLEM........THERE ARE OTHER THINGS ON THE DIAGRAM TO CHECK

LEMME KNOW HOW IT GOES/ IF YOU NEED HELP FINDING SOMETHING (I MAY BE ABLE TO GET MORE DIAGRAMS OR LOCATIONS OF STUFF....MITCHELL DID NOT HAVE A BUNCH OF DIAGRAMS ON YOUR RIG

THE MEDIC

Was this
answer
helpful?
Yes
No
Tuesday, October 29th, 2013 AT 9:01 PM
Tiny
JACOBANDNICKOLAS
  • MECHANIC
  • 110,192 POSTS
This could be a few things. First, see if the vehicle will start in NEUTRAL when it happens. Also, if you can get a helper, have him turn the key to the start position while you check for power to the smaller wire on the starter. You should get 12v there when the key is in the start position. If you do, then the starter is going bad. If there is no power and it won't start in neutral, check the starter relay. Make sure power is there. IF there is, switch the relay with another one with the same part number. If there is no power, move back to the neutral safety switch and check for power there.

Let me know what you find.
Was this
answer
helpful?
Yes
No
Thursday, October 31st, 2013 AT 8:51 AM

Please login or register to post a reply.