1986 Silverado

Tiny
BRAD DAVIS
  • MEMBER
  • 1986 CHEVROLET SILVERADO
  • V8
  • 2WD
  • MANUAL
  • 41,000 MILES
1986 chevy silverado windshield wipers stay on all the time. What causes that?
Sunday, February 20th, 2011 AT 7:15 PM

2 Replies

Tiny
JDL
  • MECHANIC
  • 16,098 POSTS
Even with the key off?

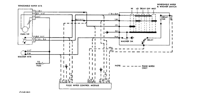
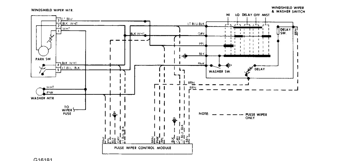
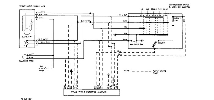
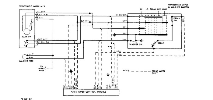
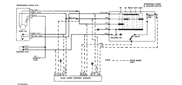
Disconnect wiring from termin als 4 and 5, replace park switch assembly is motor stops. If motor still runs, remove wires from terminals 1--2-- and 3, connect volt to terminal 1 only, if motor does not run, it indicates a ground in wires from wiper motor to terminal 2 or 3 at dash switch. If it runs, check for internal ground at high or low brushes.
Was this
answer
helpful?
Yes
No
Tuesday, March 22nd, 2011 AT 7:39 PM
Tiny
JDL
  • MECHANIC
  • 16,098 POSTS
I'll try it again.
Was this
answer
helpful?
Yes
No
Tuesday, March 22nd, 2011 AT 7:42 PM

Please login or register to post a reply.