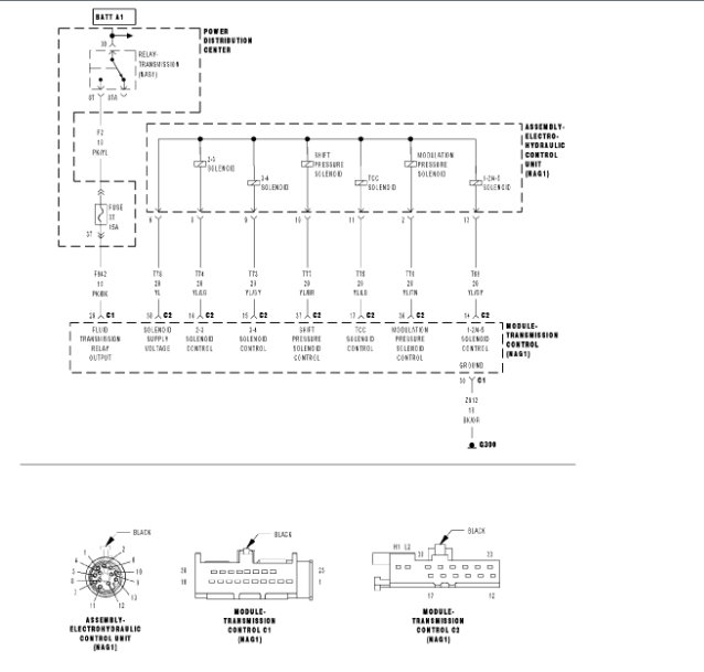
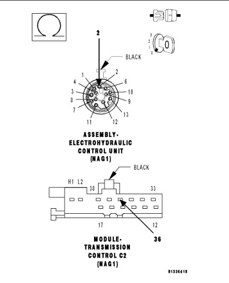
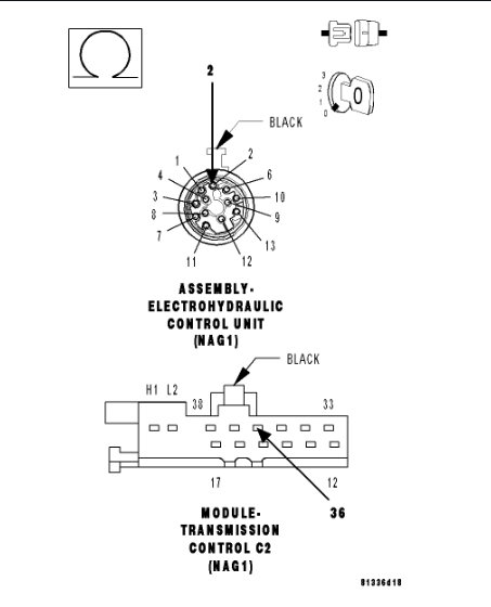
Friday, September 23rd, 2022 AT 12:51 PM
I keep getting trouble codes P0700 and P0748. I replaced the pressure control solenoid and the car ran good for about 2 weeks. Now it's doing it again but not all the time. Sometimes it runs well, then all of a sudden it won't go past 40 MPH.













