Saturday, July 29th, 2023 AT 3:15 PM
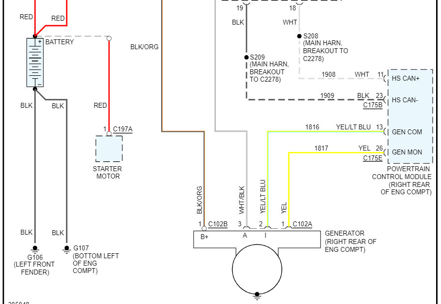
Okay, here goes I got back for a 1,100-mile trip in my 500/then all electrical went crazy; everything electrical would turn off and back on over and over again. Then battery while car was sitting tested alternator found it was bad, I thought, and it did now the idle gets rough and there is when it does no codes but p1919 the fuel gauge is a little strange and oil pressure warning after running a little. My question is, I looked the best I could find was it was temperature control something, so I unplugged it and as soon I did the fans came on highs speed and the A/C inside quit working. I am so stumped because all that happen was new alternator now pushing 13.9 volts battery is always at 12.7 volts. My question is, the car was running great so I don't understand what happen. Do I need to reset it adjust and components the battery was disconnected for almost 2 weeks while we got an alternator or did the temperature sensor go bad or a fuse maybe? Please let me know what you think cause I can usually figure it out but I am grasping at straws atm thank you in advance.



