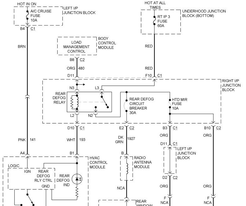
Thursday, September 14th, 2017 AT 11:00 AM
Defroster worked fine, started having a problem with the blower motor not working, but if you slapped the lower dash between the defroster switch and the glove box, the blower motor would work. It now works fine, but now the rear defroster does not. When turned on, the light works, you hear the relay click. Replaced it with new anyway. There is no power to the rear defroster. Tabs and grid on it are fine. Everything else in the car work perfect, AC/cruise, all fuses that I can see look fine. Worked fine until I hit the lower dash. What could I have done to make it stop working by hitting the lower dash?



