Tuesday, February 16th, 2010 AT 9:25 PM
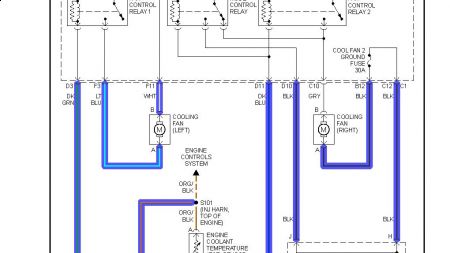
I have tested the Coolant temp sensor(which is about a year old) along with a new sensor, they both show similar readings as far as resistance both cold and sitting in hot water, readings were 5.4 ohms cold (not sure if thats the right spot for the decimal, it was set on 20 Ohms on the multimeter), and about 1.8 in hot water. Tested the plug for voltage, one side read ~4.8v. The fan stays on constantly, the temp guage is always at the bottom, which is 100 degrees. I'm at a loss here. It runs a bit rough sometimes, and takes forever to warm up with the fan on.






