Tuesday, June 5th, 2018 AT 10:55 PM
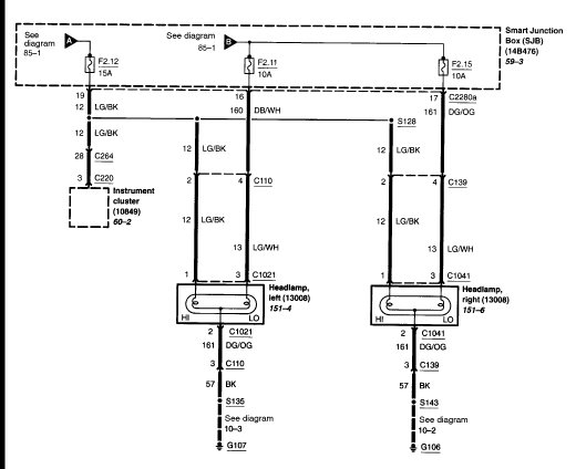
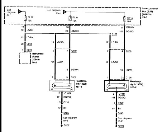
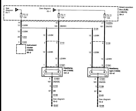
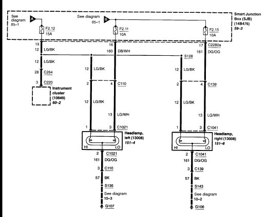
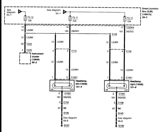
Headlight went out when just running lights on they would blink then would stop when turned on, but the one on driver side was out. So I bought new one at part store they put in for me was a lot brighter when on. However, when off the running lights were still blinking. Took to a mechanic had two new headlights put in along with two new sockets (pig tales). Worked fine for a day now it is worse than it was. The lights are so dim I cannot see the road and when on bright only the driver's side works and when just the running lights blinking again. Please help.



