Fuse diagram for both fuse boxes

Tiny
NATALIE ALLISON
  • MEMBER
  • 2005 FORD FOCUS
  • 1.3L
  • MANUAL
  • 130,000 MILES
Can someone help me get a fuse box diagram for both fuse boxes please? Thank you
ZX4 ST model.
Friday, April 26th, 2019 AT 12:36 PM

7 Replies

Tiny
ASEMASTER6371
  • MECHANIC
  • 52,796 POSTS
Good afternoon,

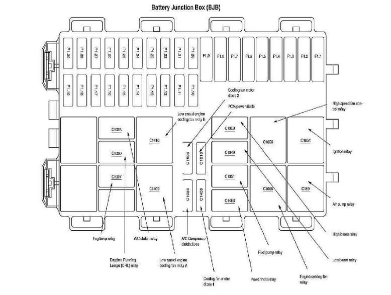
I attached both fuse boxes and the identification of the fuses for you below.

Roy
Was this
answer
helpful?
Yes
No
+2
Friday, April 26th, 2019 AT 1:14 PM
Tiny
NATALIE ALLISON
  • MEMBER
  • 4 POSTS
Thank you so much, it is appreciated!
Was this
answer
helpful?
Yes
No
Friday, April 26th, 2019 AT 1:36 PM
Tiny
ASEMASTER6371
  • MECHANIC
  • 52,796 POSTS
You are welcome.

Always glad to help.

Roy
Was this
answer
helpful?
Yes
No
Friday, April 26th, 2019 AT 1:57 PM
Tiny
NATALIE ALLISON
  • MEMBER
  • 4 POSTS
Quick question. My fuse box only has up to #62 with no #63 and the diagram has a #63 fuse and there is no asterisk or any comment referring to this being on only some models. So I'm wondering if that is just normal and it is the right diagram. Needing reassurance I guess before I start changing around my fuses. Thanks
Was this
answer
helpful?
Yes
No
Friday, April 26th, 2019 AT 2:06 PM
Tiny
ASEMASTER6371
  • MECHANIC
  • 52,796 POSTS
Sometimes there are options that are added and the diagrams do not reflect it.

Roy
Was this
answer
helpful?
Yes
No
Friday, April 26th, 2019 AT 2:12 PM
Tiny
NATALIE ALLISON
  • MEMBER
  • 4 POSTS
That's what I was thinking. The only other thing that made me ask was that #44 and #46 aren't an options but I do in fact have fog lights and ABS so I'm guessing if this is the right diagram then for some reason a fuse is simply not needed for those items. I won't pretend to know all about cars, its the one thing that's never interested me in my free time unless necessary but I do have the power of common sense so my apologies for all the questions. It is a learning process.
Was this
answer
helpful?
Yes
No
Friday, April 26th, 2019 AT 2:37 PM
Tiny
ASEMASTER6371
  • MECHANIC
  • 52,796 POSTS
Yes it is.

Roy
Was this
answer
helpful?
Yes
No
Friday, April 26th, 2019 AT 3:02 PM

Please login or register to post a reply.