HOME
ASK A QUESTION
REPAIR GUIDES
BECOME A MEMBER
LOG IN
Login with Facebook
OR
Remember me
NOT A MEMBER?
FORGOT PASSWORD?
CONTACT US
PRIVACY POLICY
TERMS AND CONDITIONS
☰
Home
Cadillac
Deville
Engine Cooling
Cooling Fan
Not Working
Cooling fans will not come on
WARREN DUNCAN
MEMBER
1986 CADILLAC DEVILLE
4.1L
V8
2WD
155,000 MILES
Right cooling fan does not come on and car cuts off when it gets warm while driving.
Tuesday, January 7th, 2020 AT 10:25 AM
1 Reply
ASEMASTER6371
MECHANIC
52,796 POSTS
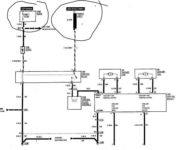
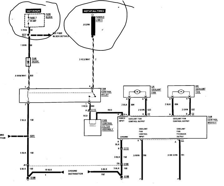
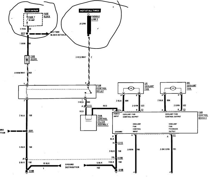
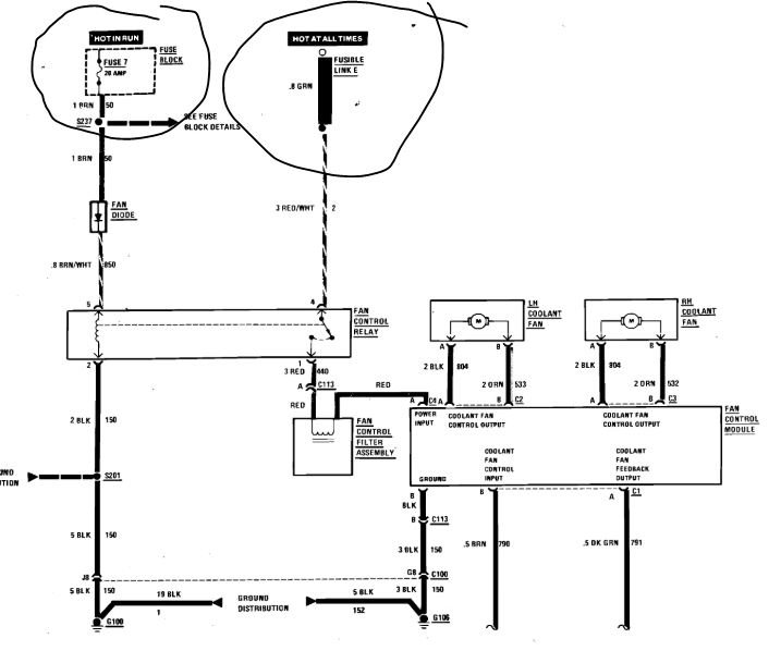
Good afternoon,
Did you check the voltage at the one that does not work?
I attached diagrams for you to view. Check the fuse and the fusible link.
If there is no voltage to the motor, the cooling fan module may be the failure as it controls both motors.
Roy
Images (Click to make bigger)
Was this
answer
helpful?
Yes
No
Tuesday, January 7th, 2020 AT 11:53 AM
Please
login
or
register
to post a reply.
Related Cooling Fan Not Working Content
Cooling Fan Does Not Turn On
I Have A 4.9 Engine With 150,000 Miles. The Cooling Fan Will Not Come On. I Have Changed The Sensor But It Still Will Not Come On. What...
Asked by
dickwhyte
·
2 ANSWERS
3 IMAGES
1994
CADILLAC DEVILLE
Cooling Fan Not Working
My Car Is Overheating It Is A 98 Cadillac Deville I Believe It Is The Fans I Let It Idle Up To 221 Degrees And The 2 Electric Fans Did Not...
Asked by
Kmeyer78
·
1 ANSWER
11 IMAGES
1998
CADILLAC DEVILLE
Driver Side Radiator Fan Is Not Working And Car Is...
My Car Is Overheating, Much Seen Thread. I Noticed That The Driver Side Radiator Fan Is Not On. I Am Looking For Any Indication Other Than...
Asked by
joshpb
·
3 ANSWERS
9 IMAGES
1999
CADILLAC DEVILLE
The Cooling Fans Do Not Come On
Is There Other Fuses The Car Runs Hot I've Noticed That The Fans Did Not Come On. Coolant Is Backing Up In The Overflow The Coolant Fans Are...
Asked by
vocalpoint
·
1 ANSWER
1995
CADILLAC DEVILLE
Cooling Fans Are Not Working On My Car?
My Cooling Fans Are Not Working On My Car, I Hooked Up My Fans Directly To My Battery To Check The Motor And The Motors Are Good. Idk What...
Asked by
cat4690
·
1 ANSWER
11 IMAGES
1999
CADILLAC DEVILLE
VIEW MORE
Ask a Car Question. It's Free!