Thursday, October 8th, 2020 AT 10:54 AM
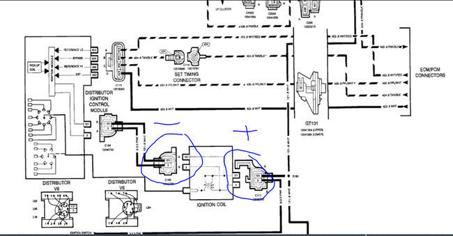
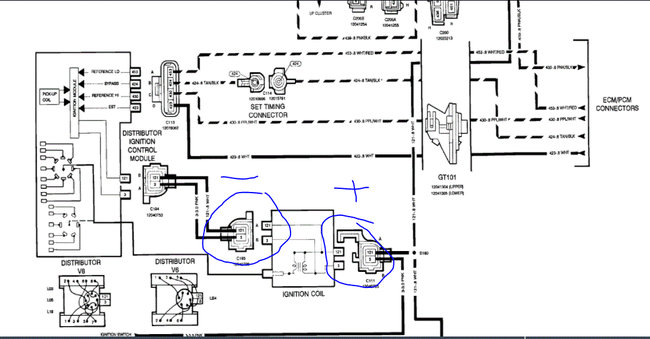
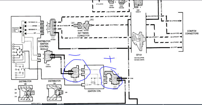
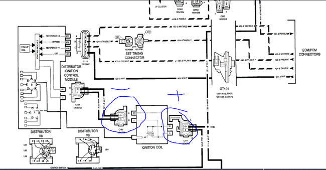
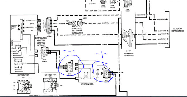
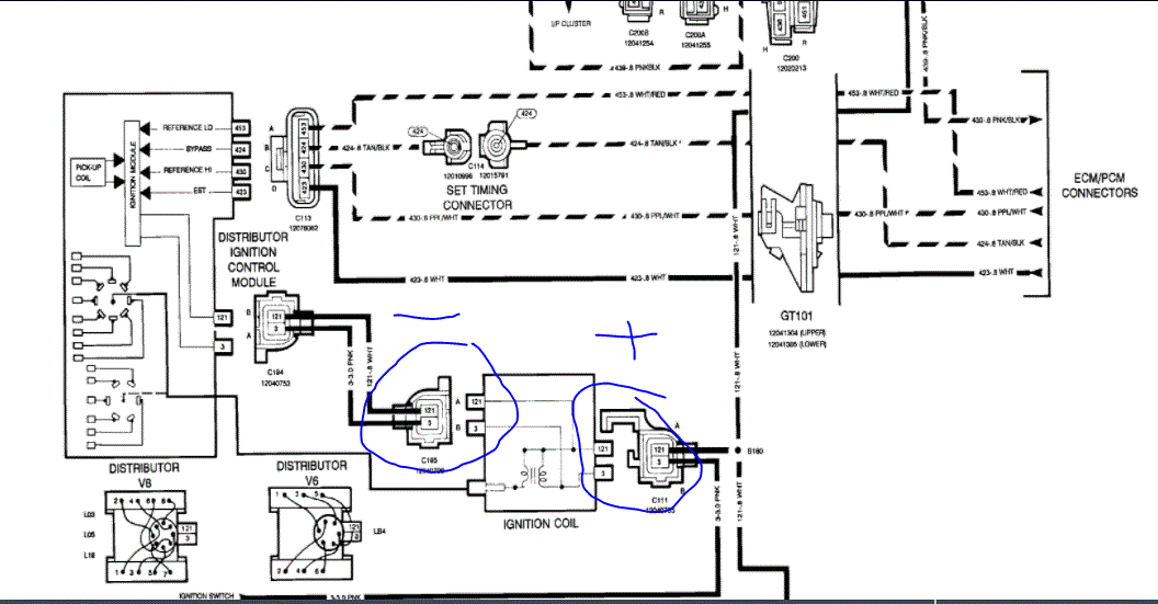
I have a 1993 with a 454. I’m changing the coil to a aftermarket Accel. The Accel has a + and a -. My stock coil has two plugs. Drivers side is pink and white. The passenger side is pink and white. Which wires go to the Accel + and -. Thanks


