Code P-2101

2006 NISSAN ARMADA
150,000 MILES • 5.7L • V8 • 2WD • AUTOMATIC
Avatar
CHRIS LANE2
  • MEMBER
  • 1 POST
I am getting the code "P-2101". Will buying a new throttle body fix this problem?
Aug 22, 2020 at 12:41 PM
Advertisement
Repair Safety Notice: This information is for general instructional purposes only. Vehicle repair can be dangerous. Verify all information, follow manufacturer service procedures, use proper tools and safety equipment, and consult a qualified repair shop when needed.
Avatar
KASEKENNY
  • AUTOMOTIVE REPAIR CONTRIBUTOR
  • 18,907 POSTS
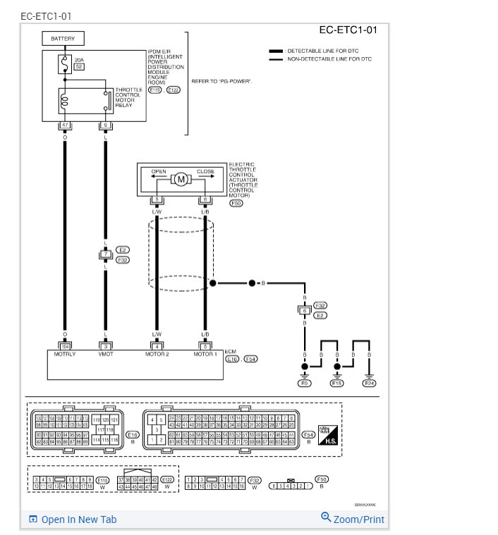
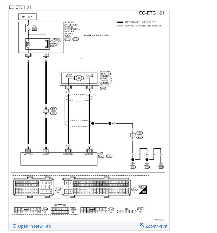
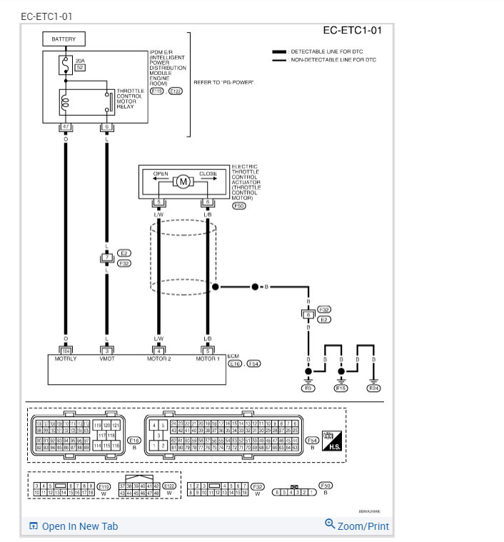
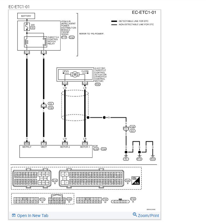
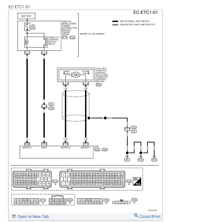
This is possible but there are a number of other things that can cause this. I attached all the testing that we need to do in order to find out what is needed. Let's run through this just to confirm but I suspect you have a wiring or throttle control actuator.

Again, let's run through this and see what we find. Thanks
Aug 22, 2020 at 5:34 PM